NEW

津山市吹屋町 売店舗事務所(アイ・ふきや)

880万円

岡山県津山市吹屋町21

姫新線「津山」駅徒歩9分

価格
880万円
間取り
1R
土地面積
-(-)
構造
鉄筋コンクリート
所在階 / 階建て
1階 / -
所在地
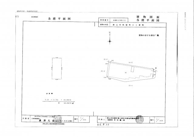
岡山県津山市吹屋町21
交通

姫新線津山」駅 徒歩9分

管理費等
6,000円
専有面積
60.28㎡(18.23坪)
用途地域
商業
築年月
1994年7月(築31年)

セールスポイント

アイ・ふきや1階店舗・事務所物件です。駅から徒歩10分!

基本情報

価格
880万円
管理費
6,000円
修繕積立金
2,000円
建物面積 /
専有面積
60.28㎡(18.23坪)
土地面積
-(-)
バルコニー面積
-
その他面積
-
-
-
坪単価
48.27万円
間取り
1R
所在階 / 階建て
1階 / -
築年月
1994年7月(築31年)
建物構造
鉄筋コンクリート
都市計画
非線引区域
用途地域
商業
駐車場 /
月額料金
近隣 7,000円
地目 / 地勢
- / 平坦
建ぺい率 /
容積率
80% / 400%
向き
駐輪場
-
私道負担面積
-
総戸数
-
土地権利
所有権
土地
(敷金 / 保証金)
- / -
国土法届出要否
不要
現況
空家
接道状況
三方(南 公道 6.0m 間口 105.0m)(東 公道 5.5m 間口 15.0m)(西 公道 5.5m 間口 30.0m)
取引態様
専任媒介
引渡
即時
管理員の
勤務形態
巡回
管理形態
管理会社に全部委託
管理会社 /
管理組合有無
- / 有
その他
法令上の制限
-
取引条件の
有効期限
2025年12月03日

設備条件

設備条件
  • 事務所可 / 2人入居可 / 都市ガス / 公営水道 / 公共下水 / 電気有 / 光ファイバー
設備(その他)
    キッチン有

その他

物件番号
40566436
管理コード
-
情報更新日
2025年11月19日
次回更新予定日
2025年12月03日
取扱会社
  • 有限会社昴不動産
  • 岡山県津山市細工町27 
  • TEL:0868-25-0001
  • 岡山県知事 (9) 第3250号

  • 一般社団法人 岡山県不動産協会
    公益社団法人 全日本不動産協会岡山県本部
    公益社団法人 不動産保証協会岡山県本部
    全国賃貸管理ビジネス協会 会員
    津山商工会議所 会員
備考
現在賃貸中につき投資物件としても可。(賃料は毎月7万円入ります)

周辺施設

  • 天満屋津山店の画像

    デパート

    天満屋津山店

    332m(5分)

  • 津山中央記念病院の画像

    総合病院

    津山中央記念病院

    640m(8分)

支払いシミュレーション

月々の支払額
9.6
購入希望物件価格
万円
頭金
万円
金利
%
返済額(ボーナス1回分)
万円
返済期間

※ボーナスは自動で年2回分で計算されます。

近隣の物件

  1. アイ・ふきや 飲食店 居抜き物件

    津山市吹屋町

    - (231.76㎡)

    2,480万円

  2. 津山市押入 売店舗倉庫

    津山市押入

    - (181.81㎡)

    3,780万円

  3. 津山市田町 病院跡

    津山市田町

    - (1581.00㎡)

    3,600万円

  4. 津山市志戸部 2階建店舗

    津山市志戸部

    - (197.93㎡)

    2,080万円

津山市吹屋町 売店舗事務所(アイ・ふきや)

津山市吹屋町 売店舗事務所(アイ・ふきや)

880万円

6,000円

1R(60.28㎡)

お気軽にお問い合わせください

無料お問い合わせ

有限会社昴不動産

0868-25-0001

9:00~18:00

(休:日曜日・祝日)