【外観】
-
バストイレ別

リビング
リビング
洋室
和室
玄関- 販売戸数
- -
- 総戸数
- -
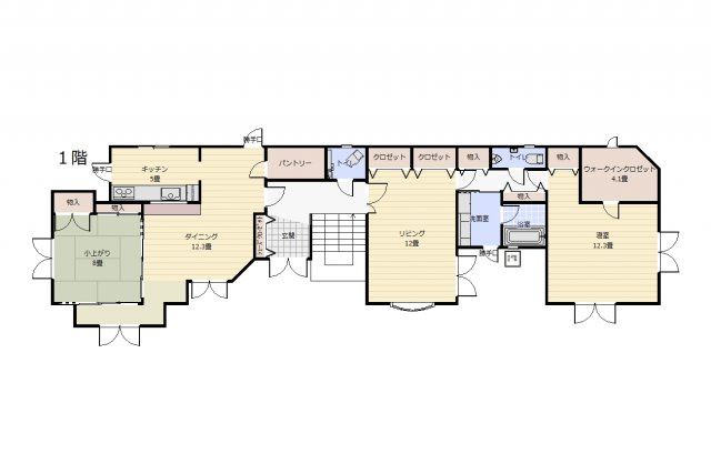
- 間取り / 詳細
- 7LDK
- 向き
- -
- 建物面積(坪数)
- 268.19㎡(81.12坪)
- 土地面積(坪数)
- 305.35㎡(92.36坪)
- 建ぺい率 /
容積率 - 60%/200%
- 築年月
- 1992年3月(築34年)
- 駐車場 / 月額
- 有(4台) / -
- 土地権利
- 所有権
- 土地
(敷金 / 保証金) - - / -
- 建物構造
- 木造 / 3階建
- 傾斜地部分面積
- -
- 路地状敷地
- -
- 私道負担面積
- -
- セットバック
- 記載なし
- 高圧線下面積
- -
- 施工会社
- -
- 用途地域
- 第二種中高層住居専用/無指定
- 地目 / 地勢
- - / -
- 接道状況
- 二方
- 国土法届出要否
- 不要
- 都市計画
- -
- 総区画数 /
販売区画数 - -/-
- 現況
- 空家
- その他
法令上の制限 - -
- 取引態様
- 一般媒介
- 引渡し
- 即時
- 取引条件の
有効期限 - 2026年05月25日
- 設備条件
-
- 閑静な住宅地 / フローリング / 専用庭 / バルコニー / 公営水道 / 公共下水 / 電気有 / 堀ごたつ / 照明器具付き / 駐車2台可 / IHクッキングヒーター / コンロ2口以上 / 冷蔵庫あり / 食器洗い乾燥機 / システムキッチン / コンロ3口 / バス・トイレ別 / 洗面台 / トイレ2ヶ所 / エアコン / ウォークインクロゼット
- 設備(その他)
-
-
-
- 物件番号
- 74437021
- 管理コード
- -
- 建築確認番号
- -
- 情報更新日
- 2026年05月11日
- 次回更新予定日
- 2026年05月25日
- 取扱会社
-
- 有限会社昴不動産
- 岡山県津山市細工町27
- TEL:0868-25-0001
- 岡山県知事 (9) 第3250号
- 一般社団法人 岡山県不動産協会
公益社団法人 全日本不動産協会岡山県本部
公益社団法人 不動産保証協会岡山県本部
全国賃貸管理ビジネス協会 会員
津山商工会議所 会員
- 備考
- 専用庭付、植物を育てるなどガーデニングもできます。フローリングは掃除が簡単です。中古戸建て物件でリーズナブルかつ快適な生活を送りましょう。ウォークインクローゼット、パントリー付きで収納も豊富です。是非一度お問い合わせ下さい!
-
高校
津山工業高等学校
301m(4分)
-
焼肉
牛角 津山店
316m(4分)
-
コンビニエンスストア
セブンイレブン北園店
371m(5分)
-
中学校
鶴山中学校
648m(9分)
-
スーパー
マルイ 総社店
664m(9分)
-
生活雑貨店
ダイソーランディーズノースランド店
784m(10分)
-
保育園
総社保育園
789m(10分)
-
高校
岡山県立 津山中学校・高等学校
871m(11分)
-
コンビニエンスストア
ローソン 津山柳通
880m(11分)
-
郵便局
総社郵便局
922m(12分)
-
小学校
北小学校
938m(12分)
-
スーパー
(株)マルイ ノースランド店
944m(12分)
-
ファミリーレストラン
ガスト津山小原店
1001m(13分)
-
スーパー
ハピーズ 小田中店
1363m(18分)
-
内科
医療法人西下病院
1506m(19分)
-
銀行
津山信用金庫 林田支店
1531m(20分)
- 月々の支払額
- 円
- 購入希望物件価格
-
万円
- 頭金
-
万円
- 金利
-
%
- 返済額(ボーナス1回分)
-
万円
- 返済期間
-
年
物件の特徴
セールスポイント
268㎡広々7LDKの3階建て中古住宅!駐車場も4台可能で、学校やスーパー、薬局も徒歩圏内で立地良好です。
ポイント
パノラマ画像
基本情報
設備条件
その他
周辺施設
支払いシミュレーション
※実際の金額と異なる場合があります。
※ボーナスは自動で年2回分で計算されます。
近隣の物件
よく見られている物件
津山市山北 中古住宅 7LDK
2,450万円
-
7LDK(268.19㎡)