NEW

津山市沼 社員寮跡

1,400万円

岡山県津山市346-56

津山線「津山」駅徒歩35分

価格
1,400万円
間取り
-
土地面積
597.48㎡(180.73坪)
構造
鉄骨造
所在階 / 階建て
1-2階 / 2階建
所在地
岡山県津山市346-56
交通

津山線津山」駅 徒歩35分

専有面積
412.47㎡(124.77坪)
用途地域
第一種低層住居専用
築年月
1987年4月(築38年)

物件の特徴

  • 室内洗濯機置場

セールスポイント

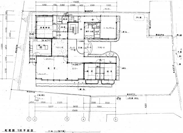
最寄りのスーパー「ラ・ムー津山店」が470mのところにあり便利な立地。 金額は相談に応じます。個室10室、食堂、談話室のある社員寮として使われていた建物です。坪庭あり。

ポイント

土地150坪以上 即引渡し可 専有面積30坪以上 地すべり警戒区域

基本情報

価格
1,400万円
修繕積立金
-
建物面積 /
専有面積
412.47㎡(124.77坪)
土地面積
597.48㎡(180.73坪)
バルコニー面積
-
その他面積
-
-
-
坪単価
11.22万円
間取り
-
向き
-
所在階 / 階建て
1-2階 / 2階建
築年月
1987年4月(築38年)
建物構造
鉄骨造
都市計画
非線引区域
用途地域
第一種低層住居専用
駐車場 /
月額料金
有 -
地目 / 地勢
宅地 / 高台
建ぺい率 /
容積率
50% / 100%
駐輪場
-
私道負担面積
-
総戸数
-
土地権利
所有権
土地
(敷金 / 保証金)
- / -
国土法届出要否
不要
現況
空家
接道状況
一方(東 公道)
取引態様
一般媒介
引渡
即時
管理員の
勤務形態
-
管理形態
-
管理会社 /
管理組合有無
- / -
その他
法令上の制限
-
取引条件の
有効期限
2026年02月06日

設備条件

設備条件
  • 室内洗濯機置場 / 公営水道 / 公共下水
設備(その他)
    -

その他

物件番号
62483310
管理コード
-
情報更新日
2026年01月23日
次回更新予定日
2026年02月06日
取扱会社
  • 有限会社昴不動産
  • 岡山県津山市細工町27 
  • TEL:0868-25-0001
  • 岡山県知事 (9) 第3250号

  • 一般社団法人 岡山県不動産協会
    公益社団法人 全日本不動産協会岡山県本部
    公益社団法人 不動産保証協会岡山県本部
    全国賃貸管理ビジネス協会 会員
    津山商工会議所 会員
備考
スーパー「ラ・ムー津山店」まで470m。
大掛かりなリフォームが必要です。
お風呂・トイレ共同使用。

周辺施設

  • ローソン 津山柳通の画像

    コンビニエンスストア

    ローソン 津山柳通

    377m(5分)

  • ザ・ダイソー・ラムー津山店の画像

    生活雑貨店

    ザ・ダイソー・ラムー津山店

    486m(7分)

  • (株)マルイ 志戸部店の画像

    スーパー

    (株)マルイ 志戸部店

    712m(9分)

  • 津山工業高等専門学校の画像

    その他

    津山工業高等専門学校

    978m(13分)

  • 東小学校の画像

    小学校

    東小学校

    1033m(13分)

  • 津山市役所の画像

    市役所・区役所

    津山市役所

    1184m(15分)

  • 私立岡山県美作高校の画像

    高校

    私立岡山県美作高校

    1261m(16分)

  • やよい保育園の画像

    保育園

    やよい保育園

    1717m(22分)

  • 津山市立北陵中学校の画像

    中学校

    津山市立北陵中学校

    1786m(23分)

支払いシミュレーション

月々の支払額
9.6
購入希望物件価格
万円
頭金
万円
金利
%
返済額(ボーナス1回分)
万円
返済期間

※ボーナスは自動で年2回分で計算されます。

近隣の物件

  1. 津山市昭和町 売ビル

    津山市昭和町2丁目

    2DK (1563.87㎡)

    2,500万円

  2. 津山市押入 ゴルフ練習場

    津山市押入

    - (2000.00㎡)

    29,500万円

  3. 津山市沼 病院跡 

    津山市沼

    - (950.05㎡)

    11,000万円

  4. 津山市勝部 アパート

    津山市勝部

    2DK (183.82㎡)

    1,880万円

津山市沼 社員寮跡

津山市沼 社員寮跡

1,400万円

-

-(412.47㎡)

お気軽にお問い合わせください

無料お問い合わせ

有限会社昴不動産

0868-25-0001

9:00~18:00

(休:日曜日・祝日)